WUNDERHAUS
Accueil
Réalisations
Qui suis-je?
Services
Contact
WUNDERHAUS
Accueil
Réalisations
Qui suis-je?
Services
Contact
Accueil
Réalisations
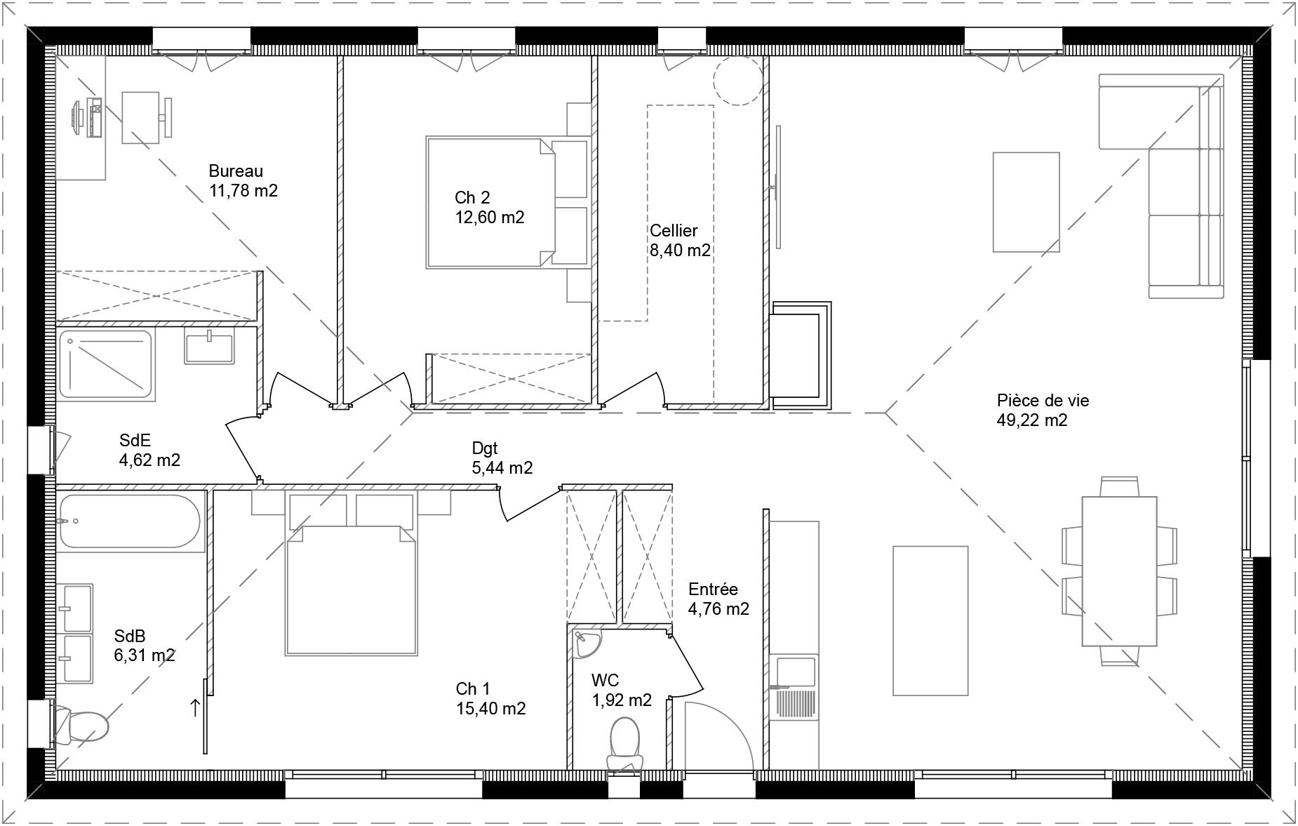
Projet ST THEODORIT
Projet ST THEODORIT
04/12/2022
Plan intérieur
Maison individuelle 123 m² plancher
Insertion
+33-661878603
-
Elodie Chiarello
wunderhaus@outlook.fr